Представят характеристики, безопасные методы эксплуатации и технические параметры средне напряженного коммутационного аппарата HXGN-12
1.Сфера применения

HXGN□-12 (FR) коробчатое фиксированное металлическое закрытое распределительное устройство переменного тока (называемое «кольцевым сетевым шкафом»)-это новый тип распределительного устройства, предназначенный для реконструкции и строительства городских электрических сетей. Он также используется в качестве тока отключающей нагрузки, тока короткого замыкания и тока закрывающей тарелки в системе питания и подходит для системы распределения мощности переменного тока 3-10 кВ, 50 Гц. Он широко используется в проектах строительства и реконструкции городских электросетей, промышленных и горнодобывающих предприятиях, высотных зданиях и общественных объектах и т. Д. В качестве блока питания кольцевой сети и оконечного оборудования, играющего роль распределения энергии, управления и защиты электрооборудования, а также может быть установлен в предустановленные подстанции. Этот кольцевой сетевой шкаф оснащен вакуумным выключателем нагрузки и пружинным механизмом, которым можно управлять вручную или электрически. Заземляющий выключатель и изолирующий выключатель оснащены механизмами ручного управления, а полный комплект этого кольцевого сетевого шкафа прочный и маленький. Нет риска возгорания и взрыва, и он имеет надежную функцию «пяти профилактических». Этот кольцевой сетевой шкаф соответствует соответствующим положениям стандарта GB3960 «3 ~ 35КВ АC Metal Switchgear» и IEC60420 «Высоковольтный выключатель нагрузки переменного тока-предохранитель Комбинированные электрические приборы».
2.Модель и ее значение
HXGN□-12 (ФР)
H: кольцевая сеть
X: Тип коробки
G: стационарный
N: Внутренний
□: серийный номер конструкции
12: Номинальное напряжение
(F.R)Комбинация выключателя и предохранителя:
3.Нормальные условия использования
1.Температура окружающего воздуха: -15. 0 40°C;
2.Высота: 1000м и ниже;
3. Условия влажности: среднесуточное значение не более 95%, среднесуточное давление водяного пара не более 2,2 кПа, среднемесячное значение не более 90%, а среднемесячное давление водяного пара не более 8 кПа л;
4.Интенсивность землетрясения: не более 8 градусов;
5.Нет очевидных загрязняющих веществ, таких как коррозионные или горючие газы.
Примечание: В случае превышения вышеприведенных нормальных условий использования пользователь может договориться с Компанией.
4.Основные технические параметры
Серийный номер | Имя | единицы | данные | |
1 | Номинальное напряжение | КВ | 12 | |
2 | Номинальный ток | Нагрузка выключающего устройства | А | 630 |
Комбинированный коммутатор | 125 | |||
3 | Номинальный ток размыкания короткого замыкания | KА | 31.5 | |
4 | Номинальный ток отключения активной нагрузки | А | 630 | |
5 | Краткосрочное выдержание тока | KА | 20 | |
6 | Номинальный пик выдерживает ток | KА | 50 | |
7 | Номинальная частота мощности предназначена для выдержания напряжения междуфазными, заземленными/break | КВ | 42/48 | |
8 | Молнический удар устойчив к фазе напряжения, земли/break | КВ | 75/85 | |
9 | Механическая жизнь | Раз | 10000 | |
10 | Номинальный ток передачи (комбинированные приборы) | А | 3150 | |
11 | Как это работает | Ручное или электрическое | ||
12 | Уровень защиты | IP3X | ||
5.Структурные характеристики (asпоказано на рисунке 2 и рисунке 3)
1.Характеристики структурной эксплуатации
1.1.1 шкаф сети кольца принимает профиль 8МФ, и вся рамка установлена с отверстиями Б = 2 модуля (тан.
Кольцевой сетевой шкаф L1.2 оснащен переключателем нагрузки или электрическим прибором с комбинированным предохранителем, который имеет изолирующий выключатель, вакуумный выключатель нагрузки и выключатель заземления, а разъединитель и выключатель заземления имеют явные перерывы.
1,3 Переключатель изоляции, переключатель нагрузки вакуума, заземляя переключатель, и дверь шкафа имеют идеальные и надежные выкапывая и блокируя приборы, которые могут эффектно предотвратить неправильную работу и обеспечить безопасное обслуживание.
1.1.4 Его можно управлять вручную и электрически.
1.Дверь шкафа и дверь приборов измерительного шкафа L5 оборудованы уплотнительными штифтами.
1.1.6 Плавкий комбинированный электрический шкаф и трубка расплава с боем. В случае короткого замыкания боок попадает в механизм отключения для быстрого открытия и разрыва, что может эффективно защитить электрооборудование.
1.L 7 кольцевой сетевой кабинет принимает переднюю работу, надежную стенную установку.
2.Функция блокировки "Пять предотвращений"
2. 2,1 деятельность передачи энергии: Только когда дверь шкафа закрыта и заперта, и земной переключатель управляется к «открытому» положению, переключатель нагрузки можно управлять для того чтобы закрыть положение.
2.2.2 Операция отключения электроэнергии: когда переключатель нагрузки находится в положении изоляции, заземляющий выключатель может быть закрыт, а когда заземляющий выключатель находится в закрытом положении, изоляционная перегородка вставляется на место, чтобы открыть дверцу шкафа.
2,1. 3 прерыватель вакуума надежно блокирован с ножом изоляции, и нож изоляции и заземляя нож соединены друг с другом и блокированы с дверью шкафа, и изолируя раздел также блокирован с дверью шкафа.
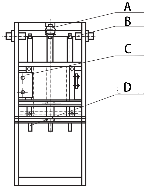
![]() | Диаграмма 2 А: изолятор B: Through the wall housing С: Оперативный механизм D: Заземляющий выключатель |
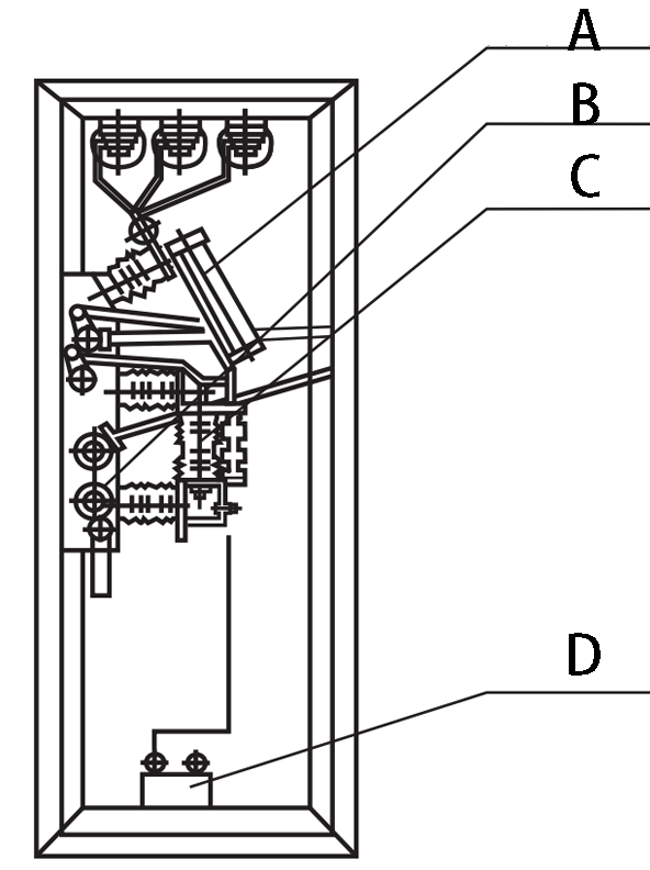
![]() | Диаграмма 3 А: предохранитель (изоляционные ножные ворота) B: Механизм контроля за пулями C: переключатель нагрузки D: трансформатор тока |
6.Принцип питания кольцевой сети
Кольцевой сетевой источник питания <состоит из трех основных блоков (см. Рисунок) Шкафы входной и выходной линий используются в качестве кольцевых сетевых блоков, которые могут быть изолированы во времени при возникновении какой-либо неисправности, а другой блок обеспечивает непрерывное электроснабжение трансформаторной ветви пользователя. Пользовательский сетевой шкаф с петлей играет роль в защите и изоляции трансформатора, что удобно для технического обслуживания и капитального ремонта. Кольцевой сетевой шкаф может быть произвольно расширен и может состоять из различных комбинированных схем из основных блоков в соответствии с требованиями пользователя.
![]() | ||
| Шкаф кабельного входа и выхода кабельного кабельного кабельного кабельного кабеля |
7.Схема основной схемы
Номер схемы | 01 | 02 | 03 | 04 | 05 | 06 |
Схема основной схемы | ![]() | |||||
Использование | Кабель в и вне линии | Кабель в и вне линии | Кабель в и вне линии | Кабель в и вне линии | Кабель в и вне линии | Кабель в и вне линии |
Изоляция/приборы для нагрузки / комбинирования | GN□-12D | GN□-12D | GN□-12D | FZN21 - 12D | FZN21 - 12D | FZN21 - 12D |
FИспользование | RN3 | RN3 | ||||
Токовой трансформатор | LZZBJ9 | LZZBJ9 | ||||
arrester | HY5W | |||||
Номер схемы | 07 | 08 | 09 | 10 | 11 | 12 |
Схема основной схемы | ![]() | |||||
Использование | Кабель в и вне линии | Кабель в и вне линии | Кабель в и вне линии | Кабель в и вне линии | Кабель в и вне линии | Кабель в и вне линии |
Изоляция/приборы для нагрузки / комбинирования | FZN21 - 12D | FZN21 - 12D | FZN21 - 12D | FZN21 - 12D | FZN21 - 12D | GN□-12D |
FИспользование | RN2 | RN2 | RN2 | |||
Токовой трансформатор | LZZBJ9 | LZZBJ9 | LZZBJ9 | LZZBJ9 | ||
Трансформатор напряжения | JDZ | JDZ | JDZ | |||
arrester | HY5W | HY5W | HY5W | |||
Номер схемы | 13 | 14 | 15 | 16 | 17 | 18 |
Схема основной схемы | ![]() | |||||
Использование | входящие и исходящие линии кабеля счетчика | Кабель в и вне линии | Кабель в и вне линии | Кабель в и вне линии | входящие и исходящие линии кабеля счетчика | Выпуск входящего кабеля, установленный на воздухе |
Изоляция/приборы для нагрузки / комбинирования | FZRN21 - 12 | FZRN21 - 12D | FZRN21 - 12D | FZRN21 - 12D | GN□-12D | |
FИспользование | RN2 | S□LАJ | S□LАJ | S□LАJ | RN2 | RN3 |
Токовой трансформатор | LZZBJ9 | LZZBJ9 | LZZBJ9 | LZZBJ9 | ||
Трансформатор напряжения | JDZ | JDZ | ||||
Номер схемы | 19 | 20 | 21 | 22 | 23 | 24 |
Схема основной схемы | ![]() | |||||
Использование | Выпуск входящего кабеля, установленный на воздухе | Выпуск входящего кабеля, установленный на воздухе | Выпуск входящего кабеля, установленный на воздухе | Выпуск входящего кабеля, установленный на воздухе | Выпуск входящего кабеля, установленный на воздухе | Выпуск входящего кабеля, установленный на воздухе |
Изоляция/приборы для нагрузки / комбинирования | FZRN21 - 12D | FZRN21 - 12D | FZRN21 - 12D | FZRN21 - 12D | FZRN21 - 12D | FZRN21 - 12D |
FИспользование | S□LАJ | S□LАJ | S□LАJ | S□LАJ | ||
Токовой трансформатор | LZZBJ9 | LZZBJ9 | LZZBJ9 | LZZBJ9 | ||
Трансформатор напряжения | ||||||
Номер схемы | 25 | 26 | 27 | 28 | 29 | 30 |
Схема основной схемы | ![]() | |||||
Использование | contact | contact | Измерение и связь | Измерение и связь | Контактная линия воздушного транспорта | Контактная линия воздушного транспорта |
Изоляция/приборы для нагрузки / комбинирования | FZRN21 - 12 | FZRN21 - 12D | FZRN21 - 12D | FZRN21 - 12 | ||
FИспользование | S□LАJ | RN2 | RN2 | S□LАJ | ||
Токовой трансформатор | LZZBJ9 | LZZBJ9 | ||||
Трансформатор напряжения | JDZ | JDZ | ||||
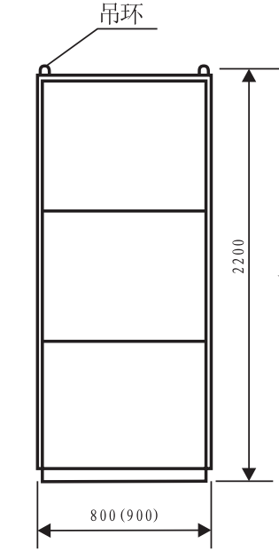
8.Форма и размер установки
1.Общий размер кольцевого сетевого шкафа
![]() | ![]() | Направление ширины кабинета |
| Описание: Высота может быть выбрана | Глубина кабинета |
2.Размер монтажа кольцевого сетевого шкафа
![]() |
| Примечание: канальная сталь должна быть надежно заземлена |
