Представят характеристики, безопасные методы эксплуатации и технические параметры средне напряженного коммутационного аппарата XGN2 - 12
Сфера применения
XGN-12 порт коробки типа фиксированного металлического закрытого коммутационного аппарата (называемого как кольцевой сетевой шкаф) подходит для переменного тока 50Гц, сети 10КВ в качестве перерывной нагрузки и короткого замыкания и закрытия тока короткого замыкания, этот кольцевой сетевой шкаф оснащен механизмом ручной и электрической пружины для управления выключателем нагрузки, а заземляющий и изоляционный выключатель оснащен механизмом ручной работы.Этот кольцевой сетевой шкаф обладает сильной полной производительностью, небольшим размером, отсутствием опасности пожара и взрыва и надежной функцией «пяти предотвращения».
Используйте условия окружающей среды
Верхний предел температуры окружающей среды составляет 40°C, а нижний предел -25°C;
Высота не превышает 1000 м;
среднесуточная относительная влажность воздуха не более 95%, а среднемесячная не более 90%; среднесуточная влажность водяного пара не более 2,2х10 - 3МПа, а среднемесячная влажность не более 1,8х10 - 3МПа;
Окружающий воздух не коррозируется или не загрязнен горючестью газами и водяными парами;
Никаких регулярных сильных вибраций.
Модель и смысл
XGN□-□-□-□/□-□
Номинальный теплоустойчивый ток (кА)
--- номинальный ток (А)
Метод работы (J пружинная работа D электромагнитная работа.)
- один номер плана
--- номинальное напряжение
- Серийный номер конструкции
---Внутренние
- Фиксированный
Тип коробки
Используйте условия окружающей среды
◆ верхний предел температуры окружающей среды 40°C нижний предел -25°C (в помещении):
◆ распределение 1000м;
(Whenвысота воды превышает 1000 м, она осуществляется в соответствии с соответствующими положениями ДУТ593 - 1996 «Техническое руководство по совместному заказу высоковольтных коммутационных аппаратов»);
◆ Среднесуточная относительная влажность не более 95%, а среднемесячная не более 90%:
интенсивность землетрясений не превышает 8 градусов;
◆ Без пожара, опасности взрыва, серьезного загрязнения, химической коррозии и сильного возмущения места.
Основные технические параметры выключательной установки
Серийный номер | Проект | единицы | данные |
1 | Номинальное напряжение | кВ | 3、6、10 |
2 | Максимальное рабочее напряжение | кВ | 3.5、8.9、11.5 |
3 | Номинальный ток | А | May-00 |
4 | Номинальный разрывный ток | kА | 16.20、31.5、40 |
5 | Номинальное короткое замыкание (Rated short circuit off current) | kА | 40、50、80.100 |
6 | Номинальный ток термической стабилизации короткого замыкания | kА | 16.20、31.5、40 |
7 | Номинальный для термостабильного тока | kА | 40、50、80、100 |
8 | Номинальное время термического осаждения | s | 4 |
9 | Уровень защиты | IP | IP2X |
10 | Система шины | - | Единая шиновая панель, рядом с одной шиновая панелью |
11 | Как это работает | - | Электромагнитный тип, тип пружинного накопителя энергии |
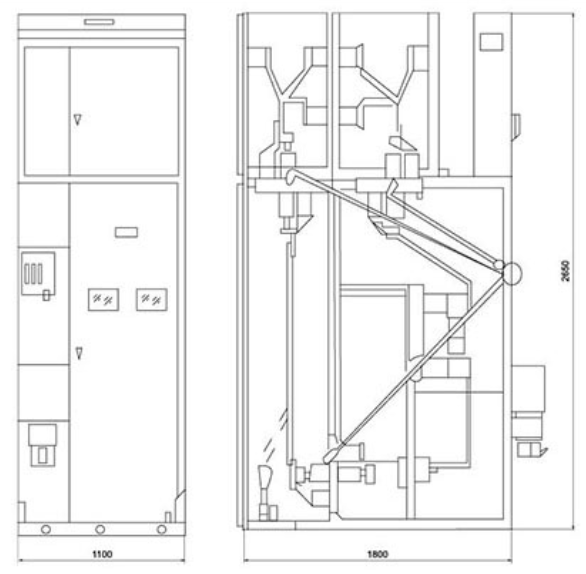
12 | Размеры (ширина), × глубина, × высоты). | mm | 1100×1200×2650 (ниже 1000А)). |
13 | Вес | kg | 1000 |
Структура и антиошибка устройство
Структура
Кабинет представляет собой металлическую закрытую бронированную конструкцию, скелет кабинета сварен угловой сталью, а кабинет разделен на комнату выключателя, комнату шины, кабельную комнату и релейную комнату, а работа основных компонентов в кабине можно наблюдать через наблюдательное окно и освещение на фасаде.Для повышения технических характеристик выключательного аппарата, основные компоненты (такие как выключатели, вращающиеся выключатели и т. д.)Они были перепроектированы.
В соответствии с компоновкой шкафа, релейная комната установлена с релеем, дверь может быть оборудована сигнальным релеем, индикаторным инструментом, сигнальным огнем, установкой переключателя передачи и операционной камерой, задней частью является комната шины, нижней частью является кабельная комната, пользователь может легко проводят проводу.Фронта расположена комната для выключателя, которая облегчает обслуживание выключательного аппарата.Внутренний механизм шкафа показано на рисунке 1, рисунке 2 и руководстве по изделию.
Устройство для предотвращения ошибок
Функции «пяти предотвращения» заключаются в следующем: предотвращение неправильного отключения и неправильного соединения выключателей; предотвращение неправильной идентификации и неправильного закрытия выключателя отключения с нагрузкой; предотвращение отключения в режиме оживления и заземления; предотвращение включения источника питания при открытии и закрытии земли; предотвращение неправильного входа в оживленные интервалы.
Эта коммутационная установка использует обязательный механический метод блокировки, а антиошибочное устройство состоит из основных компонентов, таких как опоры, диски, панели, блокирующие пластины, ручки и соединительные стершки, которые имеют характеристики надежной производительности, полных функций, простой структуры и простой эксплуатации, чтобы достичь "пяти предотвращений" просто и эффективно.:
(1)Контрольные выключатели (выключатели КВт) с красными и зелеными табличками используются в схемах выключателей для предотвращения неправильного отключения и неправильного включения выключателей;
(2)Только после того, как выключатель действительно отключен, небольшая ручка может быть вытянута из положения "рабочего" и набрана направо в положение "блокирования отключения"; разделение и закрытие изоляционных выключателей; предотвращение разделения нагрузки и закрытие изоляционных выключателей.Надежность зацепления и антиблокировки имеет двойные функции предотвращения ошибок, то есть, когда небольшая ручка находится в положении «отключение и блокировка», она может только закрыть и разделить верхние и нижние изоляционные выключатели и не может закрыть выключатель, избегая ошибочного закрытия выключателя;
(3)Когда выключатель и верхний и нижний изоляционные выключатели находятся в закрытом состоянии, а небольшая ручка находится в положении "рабочего", передние и задние двери шкафа не могут быть открыты, чтобы предотвратить по ошибке вход в интервал активного действия;
(4)При открытии верхнего и нижнего изоляционных выключателей заземляющий выключатель не может быть закрыт, а небольшая ручка не может быть переведена из положения "разрыва блокировки" в положение "обслуживания", что может предотвратить подвешивание заземляющего провода живым;
(5)Если заземляющий выключатель не открыт, то верхний и нижний изоляционные выключатели не могут быть закрыты, что может предотвратить закрытие выключателей отключения с заземляющим проводом.
Контурный элемент XGNΦ-12 / 07D (рис. 1)

1.Комната 2 для автобусов.Кабельная комната 3.Заземляющий автобус 4.Электромагнитный механизм (паужина) 5.Новая комната устройств цепи
6.Ручная эксплуатация и механизм совместных продаж 7.Оперативная камера 8.Канал спуска давления 9.Приборное помещение 10.Малый автобусный терминал
Контур XGN-12 (выпуск обходного кабеля) (рис. 2)

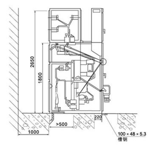
Размеры монтажного чертежа


