Представят характеристики, безопасные методы эксплуатации и технические параметры средне напряженного коммутационного оборудования KYN61 - 40.5
Модель и смысл
K Y N 61 - 40.5 / □ - □
Номинальный ток короткого замыкания разрыва (кА)
---Номинальный ток (А)
Напряжение (кВ)
- серийный номер конструкции
Внутренний
- - - - - - -
Металлическая броня.
Используйте условия окружающей среды
Верхний предел температуры окружающей среды составляет 40°C, а среднее измеренное значение за 24 часа не превышает 35°C.
Нижний предел -15°C:
Высота: не более 1000 метров над уровнем моря;
Относительная влажность: среднесуточная не более 95%, среднемесячная не более 90%;
Интенсивность землетрясения: не более 8 градусов;
Давление паров воды: среднесуточное не превышает 2,2 кПа, среднемесячное не превышает 90%.
Технические параметры
Основные технические параметры вакуумного коммутационного оборудования
Серийный номер | Проект | Размеры | параметр |
1 | Номинальное напряжение | кВ | 40.5 |
2 | Lianchang | А | 12501600 2000 |
3 | Номинальная частота | Гц | 50 |
4 | Краткосрочное выдержание тока | kА | 20 25 31.5 |
5 | Номинальный пик выдерживает ток | kА | 50 63 80 |
6 | Номинальная мощность частоты выдерживать напряжение | кВ | 95 / 1 мин. |
7 | Номинальное напряжение, выдерживаемое молниевым ударом | кВ | 185 |
8 | Номинальная продолжительность короткого замыкания | S | 4 |
9 | Уровень защиты | IP3X |
Основные технические параметры вакуумного выключателя
Серийный номер | Проект | Позиция ткачества | параметр |
1 | Номинальное напряжение | кВ | 40.5 |
2 | Номинальная частота | Гц | 50 |
3 | Номинальная мощность частоты выдерживать напряжение | кВ | 95 / л / мин |
4 | Номинальное напряжение, выдерживаемое молниевым ударом | кВ | 185 |
5 | Номинальный ток | А | 12501600 2000 |
6 | Краткосрочное выдержание тока | kА | 20 25 31.5 |
7 | Номинальный ток размыкания короткого замыкания | KА | 20 25 31.5 |
8 | Номинальный пик выдерживает ток | kА | 50 63 80 |
9 | Номинальная продолжительность короткого замыкания | ms | 4 |
10 | Время открытия | ms | 30 S 1 W 60 |
11 | Hehe time | ms | 50 & t W] 00 |
12 | 88 Количество раз прерывания тока при фиксированном коротком замыкании | Раз | 20 |
13 | Механическая жизнь | Раз | 10000 |
Основные технические параметры пружинной работы машины
Имя | единицы | Численное значение | |
Номинальное рабочее напряжение | Раздельная катушка | V | DC220 / 110 АC220 / 110 |
Закрытие катушек | |||
Номинальный рабочий ток | Раздельная катушка | А | O.96 (22OV) 1. O5I11OV) |
Закрытие катушек | |||
Мощность двигателя для накопления энергии | W | 230 | |
Номинальное напряжение двигателя для хранения энергии | V | DC220 / 110 АC220 / 110 | |
Время хранения энергии | S | w 12 |
Структурные характеристики выключательного оборудования
Коммутационная установка спроектирована в соответствии со стандартами GB3906 - 1991 и IEC298 для бронированных металлических выключательных аппаратов.В целом состоит из двух частей: шкафа и вытяжной части (ручной тележки).Структура кабинета сборная и закреплена вместе.Внутренняя часть выключательного аппарата разделена на помещение выключателя, помещение главной шины, кабельное помещение и помещение релейных приборов с металлической перегородкой.Уровень защиты корпуса достигает IP3X, уровень защиты между каждым отделением IP2X, а все металлические конструктивные части надежно заземлены, а каждый отдел основной системы цепи имеет независимый канал сброса давления выхлопных газов.
1.Корпус и раздел
Оболочка и перегородка выключательного аппарата закрепляются вместе с холодными прокатными стальными листами после обработки и изгибания станками ЧПУ.Таким образом, собранная выключательная установка может обеспечить однородность структурных размеров.Коммутационная установка разделена на помещение выключателя, помещение главной шины, кабельное помещение и помещение релейных приборов, и каждая часть разделена заземленной металлической перегородкой.
2.Ручной тележки
Ручные тележки можно разделить на ручные тележки для выключателей, ручные тележки для трансформаторов напряжения, ручные тележки для измерения, ручные тележки для изоляции и т. д. в соответствии с целью.
Ручная тележка имеет испытательное / изоляционное положение и рабочее положение в шкафу, и каждая позиция оснащена соединенным серебряным устройством, чтобы гарантировать, что ручная тележка не может быть перемещена случайно, когда она находится в вышеуказанных двух положениях.
3.Отсек для выключателя
Внутри отсека выключателя установлены специальные рельсы для передвижения ручной тележки.Когда выключатель перемещается между рабочими положениями испытательного положения, изоляционный клапан автоматически открывается или закрывается, что гарантирует, что персонал не
Прикоснуться к заряженному телу.Ручной тележки можно использовать с закрытой дверью кабинета, и ручной тележки можно увидеть в кабинете через окно обзора, а также любые знаки функций на ручной тележке.
4. Busbar chamber
Основная шина ведет от одной выключительной установки к другой с помощью ответвленной шины и статической контактной коробки, которая закрепляется с помощью рукава шины при пересечении боковых панелей смежного шкафа.Все шины изолированы композитной изоляцией.
5.Кабельный отсек
В кабельном помещении можно установить ПТ, заземляющий выключатель, противополновый предохранитель и несколько кабелей.
6.Комната ретрансляции
Пластинка и панель релейной камеры могут быть установлены с вторичными компонентами, такими как элементы управления, защиты, счетчики, дисплеи, индикаторы активного мониторинга и т. д.
7.Межблокирующее устройство
Коммутационная установка имеет надежное блокирующее устройство для обеспечения безопасности операторов и оборудования:
![]() | ![]() | ![]() |
| Содействие установке взаимосвязанного оборудования | KYN61 - 40.5 (Z) Бронированный кабинет по тележке | Заземляющий переключатель |
Когда заземляющий выключатель находится в открытом положении, ручная тележка может быть перемещена из испытательного / изоляционного положения в рабочее положение: а задней двери нельзя открыть, что предотвращает ошибочное вхождение в активный интервал.
Когда ручная тележка полностью выводится из шкафа или когда ручная тележка заземлена в испытательном / изоляционном положении в шкафу для открытия замка и разблокировки, выключатель заземления может быть закрыт; когда ручная тележка находится в рабочем положении, выключатель заземления не может быть закрыт.Он предотвращает неполадку подключения заземляющего выключателя и предотвращает перемещение многоручной тележки в рабочее положение, когда заземляющий выключатель находится в закрытом положении.
Ручная тележка для выключателя может работать только при испытательном / изоляционном положении или рабочем положении: и после того, как выключатель был назван, ручная тележка не может перемещаться, что предотвращает случайное толкание и вытягивание выключателя от активной нагрузки.Электрические блокировки могут быть установлены между каждым шкафом.
Заземляющее устройство
В кабельном помещении имеется отдельная заземляющая шина 6x50м2, которая может проходить через смежные шкафы и иметь хороший контакт с шкафами.
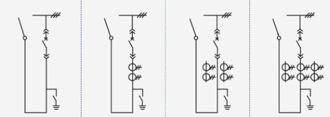
Основная схема проводки
Существует 27 обычно используемых типовых схем для первичной схемы проводки коммутационного аппарата, которые могут удовлетворить потребности пользователей в кабельных входах и выходах, воздушных входах и выходах, контактах и измерениях, защите и т. д.
Номер схемы | 01 | 02 | 03 | 04 | |
Основная схема проводки | ![]() | ||||
Основное электрическое оборудование | Номинальный ток | 125,016,002,000 | |||
Новый драйвер схемы ZN85 - 40.5 | 1 | 1 | 1 | 1 | |
Токовый трансформатор LDBJ8 (9) - 35 | 2 | ||||
Заземляющий выключатель IN22 - 40.5 / 31.5 | 1 | 1 | 1 | 1 | |
Использование | Overhead Out | Overhead Out | Overhead Out | Overhead Out | |
Номер схемы | 05 | 06 | 07 | 08 | |
Основная схема проводки | ![]() | ||||
Основное электрическое оборудование | Номинальный ток | 125,016,002,000 | |||
Новый драйвер схемы ZN85 - 40.5 | 1 | 1 | 1 | 1 | |
Токовый трансформатор LDBJ8 (9) - 35 | 2 | 3 | |||
Заземляющий выключатель IN22 - 40.5 / 31.5 | 1 | 1 | 1 | 1 | |
Использование | Выпуск кабеля | Выпуск кабеля | Выпуск кабеля | Выпуск кабеля | |
Номер схемы | 09 | 10 | 11 | 12 | |
Основная схема проводки | ![]() | ||||
Основное электрическое оборудование | Номинальный ток | 125,016,002,000 | |||
Новый драйвер схемы ZN85 - 40.5 | 1 | 1 | 1 | 1 | |
Токовый трансформатор LDBJ8 (9) - 35 | 1 | 2 | 3 | ||
Использование | Левый (правый) контакт | Левый (правый) контакт | Левый (правый) контакт | Левый (правый) контакт | |
Номер схемы | 13 | 14 | 15 | 16 | |
Основная схема проводки | ![]() | ||||
Основное электрическое оборудование | Номинальный ток | 125,016,002,000 | |||
Новый драйвер схемы ZN85 - 40.5 | |||||
Токовый трансформатор LDBJ8 (9) - 35 | 1 | 2 | 3 | ||
Использование | contact | contact | contact | contact | |
Номер схемы | 17 | 18 | 19 | 20 | |
Основная схема проводки | ![]() | ||||
Основное электрическое оборудование | Номинальный ток | 125,016,002,000 | |||
Новый драйвер схемы ZN85 - 40.5 | 1 | 1 | 1 | 1 | |
Токовый трансформатор LDBJ8 (9) - 35 | 1 | 2 | 3 | ||
Использование | Кабель в | Кабель в | Кабель в | Кабель в | |
Номер схемы | 21 | 22 | 23 | 24 | |
Основная схема проводки | ![]() | ||||
Основное электрическое оборудование | Номинальный ток | 125,016,002,000 | |||
Новый драйвер схемы ZN85 - 40.5 | 1 | 1 | 1 | 1 | |
Токовый трансформатор LDBJ8 (9) - 35 | 1 | 2 | 3 | ||
Использование | Общие расходы в | Общие расходы в | Общие расходы в | Общие расходы в | |
Номер схемы | 25 | 26 | 27 | 28 | |
Основная схема проводки | ![]() | ||||
Основное электрическое оборудование | Номинальный ток | 125,016,002,000 | |||
Трансформаторы напряжения LDX9 - 35 | |||||
XPNP-35 предохранитель | 2 | 3 | 2 | ||
Апрессор напряжения YH5WS - 51 / 134Q | 3 | ||||
| Трансформатор SCB9 - 50 - 35 / 0.4 | 1 | ||||
Использование | Трансформатор напряжения | Трансформатор напряжения | Изменилось использование станции | ||
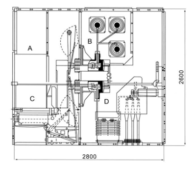
Размеры и схема конструкции коммутационного аппарата
![]() | ![]() |
| Размеры (Ш x Д x В): 1400x2800x2600 | Схематическая схема конструкции коммутационного аппарата А. Релейная прибольная комната В. автобусная комната C. выключательная комната D. кабель |
Установка шкафа коммутаторов
1.Высота электрокомната: ≥4500мм:
2.Расстояние от задней части шкафа до стены: ≥1500мм;
3.Плоскость рамы фундамента: ≤1мм / м?;
4.Часть встроенного канала фундамента выше земли не должна превышать 3 мм;
5.Он может быть закреплен на фундаменте болтами или сваркой:
6.Вес коммутатора составляет около 1800 кг:
7.Ширина коридора работы выключательного аппарата (один ряд): ≥3000мм, двойной ряд (лицом к лицу) ≥4000мм.
Консистентность продукта
- номер основной схемы вторичной линии, схема системы единой шины, схема расположения и схема компоновки;
Схема электрической схемы вторичной цепи и схема расположения клемм:
- модель, спецификация и количество электрических компонентов выключательного аппарата;
Технические характеристики и материалы основных шинок и ответвленных шинок:
Название и количество запасных частей и запчастей:
Специальные требования согласованы с производителем.
В связи с постоянным совершенствованием технологий продукции все данные должны быть подтверждены новейшим техническим отделом завода, и изменения будут происходить без предварительного уведомления.
Инструкции по заказу
Пользователь должен предоставить следующую техническую информацию при заказе::
Схема основной схемы проводки, схема назначения и схема однопроводной системы: номинальное напряжение: номинальный ток: номинальный ток отключения короткого замыкания: схема компоновки распределительного помещения и схема расположения и конфигурации выключательного аппарата и т. д.
Укажите спецификации кабелей входа и выхода.
Требования к функциям управления, измерения и защиты коммутационных аппаратов и другие требования к зацепляемым и автоматическим устройствам.
Модель, спецификация и количество основных электрических компонентов в выключательном аппарате.Как переход между ними!или входящий шкаф должен быть соединен мостом шины, и должны быть предусмотрены конкретные требования, такие как номинальная вместимость моста шины и протяженность моста шины от высоты земли.
Когда выключательная аппаратура используется в особых условиях, она должна быть подробно указана во время заказа.
Другие специальные требования.
Схематическая схема монтажа выключательного аппарата

